Made on a Mac

garagem o comércio do porto

archicad.html
artlantis.html
o_edificio.html
o_edificio.html
http://store.apple.com/pt

GPS 41.14764N   8.6120W      rua elísio de melo, 28 - 3º sala 34  .  4000-196 porto .  portugal  .  tel / fax +351 222 039 782 . tlm: +351 914 402 127 . mail@claudiolima.com.pt 

CENTRO

ESCOLAR DE VAGOS

3º PRÉMIO

homeclaudio_lima.html

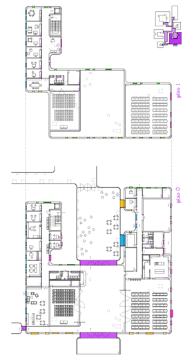
Para responder aos novos desafios que se colocam ao sistema educativo, a escola deve conviver com a flexibilidade. Partindo deste pressuposto, propõe-se a criação de uma malha ortogonal cuja dimensão “pixel” seja o gerador de formas que contêm espaços modulares e flexíveis. Essa malha funciona assim como um tabuleiro, onde as unidades são distribuídas como as peças num jogo, permitindo espaços flexíveis e multifuncionais.


mais informação...


ArchiCAD 14 foi software utilizado na concepção e execução
























balthazar-aroso, arq